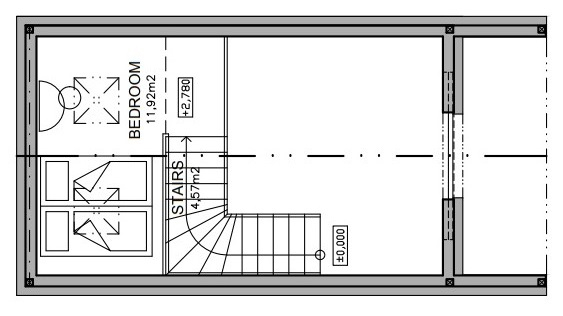
Medium sized 3-room cottage with a sleeping loft, bedroom, and a bathroom. Built-up area of 47,50 m2 and a usable area of 44,16 m2. This cottage is suitable to a family of two to four.
Plan details
External plan size including the terrace | Built-up area with a terrace | Usable area | The first above – ground floor | Second above – ground floor |
5 * 9,5 m | 47, 50 m2 | 44, 16 m2 | 27, 67 m2 | 16, 49 m2 |
Order of plans
You can order the plans or project documentation in various phases of preparation according to your needs and priorities. We deliver the plan to your email in PDF format within a few working days, and in case of Exclusive and Exclusive Individual packages also in DWG.
Package Small (200 €) | A brief technical report (which includes a description of the construction design), floor plans, detailed cross-sections drawings with elevations A-A, B-B, side views. Delivery in PDF format by email within 6 working days. |
Package Standard (450 €) | A brief technical report (which includes a description of the construction design), drawing of the building's location on the building plot, floor plans, detailed cross-sections drawings with elevations A-A, B-B, side views, drawings of the truss and roof, drawings of electrical, plumbing, and heating technology (electric floor heating), product listing (window system and interior doors). Delivery in PDF format by email within 8 working days. |
Package Exclusive (1 200 €) | Packages Small and Standard + drawing of the building's location on the building plot in DWG, production documentation (skeleton frame construction of perimeter walls, internal partitions) in PDF, a list of all construction elements. Delivery in PDF format by email within 10 – 12 working days. |
Package Exclusive Individual (3 500 €) | Packages Small, Standard and Exclusive + individual modifications of the project according to the customer's requirements and building statics (changes in dimensions, modifications to the architecture, etc.). Delivery by email within 25 – 30 working days in PDF and DWG format. |
Order form
By filling out the order form, you are binding to order the selected project package, which will be delivered to you per email.