Samples of Package Small

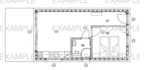
brief technical report (which includes a description of the construction design), floor plans, detailed cross-sections drawings with elevations A-A, B-B, side views. Delivery in PDF by email within 1 – 2 working days.

Price of the plan from the catalog (without modifications and additions) 250 €. The price with the required plan modifications, from 80 €.

Samples of Package Standard

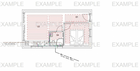
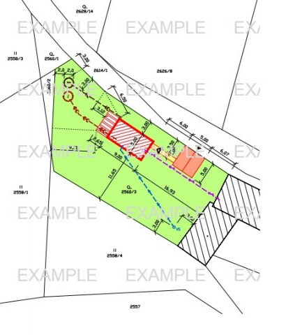
brief technical report (which includes a description of the construction design), drawing of the building's lo­cation on the building plot, floor plans, detailed cross-sections drawings with elevations A-A, B-B, side views, drawings of the truss and roof, drawings of electrical, plumbing, and heating technology (electric floor heating), product listing (window system and interior doors). Delivery in PDF by email within 3 – 5 working days.

Price of the plan from the catalog (without modifications and additions) 450 €. The price with the required plan modifications, from 140 €.

Samples of Package Exclusive

Packages Small and Standard + drawing of the building's location on the building plot in DWG, production documentation (skeleton frame construction of perimeter walls, internal partitions) in PDF, a list of all construction elements. Delivery in PDF by email within 5 – 8 working days.

Price of the plan from the catalog (without modifications and additions) 1 200 €. The price with the required plan modifications, from 190 €.

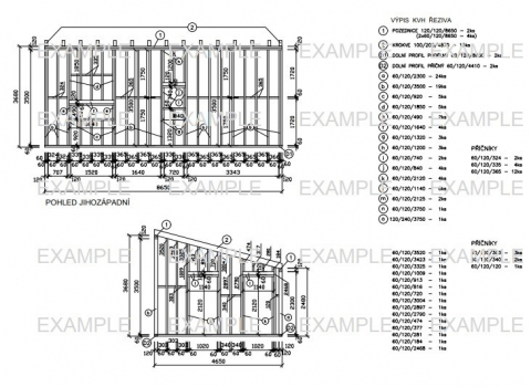
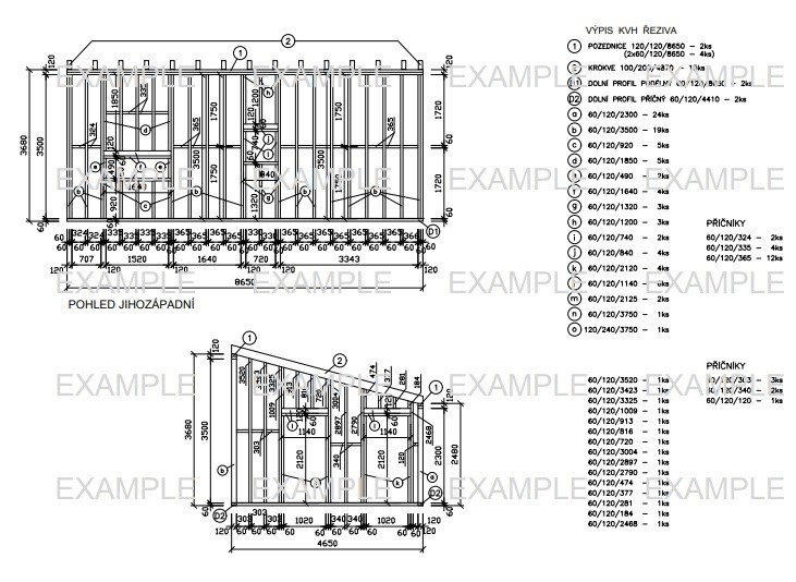
Sample of production documentation

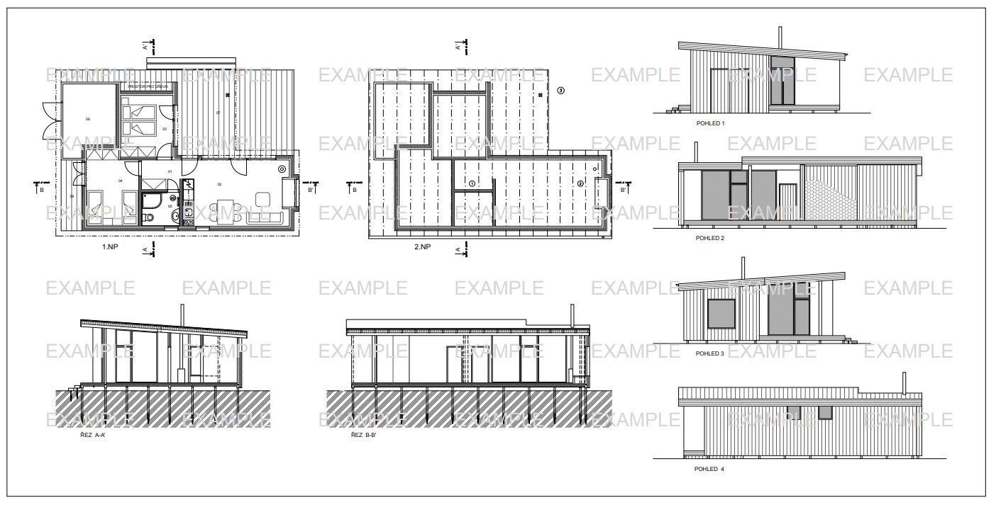
Samples of plans of glamping

How to buy ?

How to buy ?

It's completely EASY.

There is an order form in each section of the plan detail, which you fill in and we have your request in a few minutes.

We solve each order within a few hours and we approach each request individually.

View plans